Guten Abend,
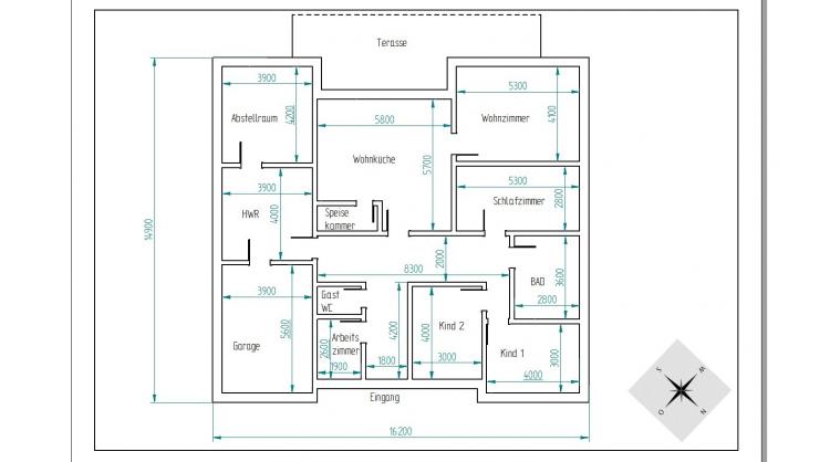
bei unserem schlüsselfertigen Bauvorhaben möchte der Auftragnehmer am 13.1. die Abnahme durchführen, bei einer Begehen während der Weihnachtsfeiertage sind uns aber einige/viele Mängel aufgefallen. Die Mängel sind zu unterscheiden in optische (Innenputz bei Garagentüre noch nicht gestrichen, Elektrische Rolloschalter falsch geschaltet,....) und wesentlichen Mängel (Garage nicht benutzbar da vollgestellt, Heizung noch nicht voll funktionsfähig, keine Einweisung in Heizung und Elektrik,...).
Grundsätzlich wollen wir das Haus abnehmen, allerdings in einem mängelfreien Zusatand. Der Bauleiter der Firma hat auch einige Punkte schon behoben, den Rest möchte er in einem "Handwerkertag" nach der Abnahme erledigen (wobei unsere Mängel alle in die Abnahme kommen). Allerdings wollen wir das eben alles vor der Abnahme erledigt haben.
Die grundsätzliche Frage ist also nun, wie können wir dies erreichen?
In diesem Zusammenhang mehrere Punkte:
1. § 633 BGB spricht ja von einem "Werk frei von Sachmängeln", § 12 VOB spricht ja nur von "wesentlichen Mängeln", die eine Abnahme verhindern. Die VOB/B wurden uns bei Vertragsschluss komplett ausgehändigt und darauf wurde bisher auch immer verwiesen bei Zusatzaufträgen mit dem Auftragnehmer.
2. Werden viele kleine Mängel, die das Haus in seiner Bewohnbarkeit nicht stören, in der Masse irgendwann auch zu einem wesentlichen Mängel nach VOB?
3. Kann eine Abnahme überhaupt stattfinden, wenn im Vorfeld von unserer Seite schon Mängel an den Auftragnehmer mitgeteilt werden und diese bisher (seit 1 Monat) noch nicht ausgebessert wurden?
4. Kann die 5 %-Erfüllungsbürgschaft nach § 632a Absatz III BGB auch noch nachträglich gefordert werden, bisher haben wir eine solche noch nicht erhalten bzw. gefordert? Also können wir sagen, wir behalten diese 5% solange ein, bis alle Mängel beseitigt sind (auch wenn die Schlussrate nur 3% sind, aber egal)?
5. Grundsätzlich wollen wir keine das Ganze friedlich lösen, wir wollen einfach ein fertiges Haus ohne Mängel bei Abnahme haben. Aber ein bisschen "Futter" beim Telefonat mit dem Auftragnehmer nach Dreikönig wäre schon nett. Auch der Ganz zu einem Baurechtsanwalt in der Nähe wäre eine Option, nur ist soetwas immer mit Kosten verbunden, wenn das "Futter" hier aber nicht beim Gespräch reicht, dann muss eben nachgelegt werden.
bei unserem schlüsselfertigen Bauvorhaben möchte der Auftragnehmer am 13.1. die Abnahme durchführen, bei einer Begehen während der Weihnachtsfeiertage sind uns aber einige/viele Mängel aufgefallen. Die Mängel sind zu unterscheiden in optische (Innenputz bei Garagentüre noch nicht gestrichen, Elektrische Rolloschalter falsch geschaltet,....) und wesentlichen Mängel (Garage nicht benutzbar da vollgestellt, Heizung noch nicht voll funktionsfähig, keine Einweisung in Heizung und Elektrik,...).
Grundsätzlich wollen wir das Haus abnehmen, allerdings in einem mängelfreien Zusatand. Der Bauleiter der Firma hat auch einige Punkte schon behoben, den Rest möchte er in einem "Handwerkertag" nach der Abnahme erledigen (wobei unsere Mängel alle in die Abnahme kommen). Allerdings wollen wir das eben alles vor der Abnahme erledigt haben.
Die grundsätzliche Frage ist also nun, wie können wir dies erreichen?
In diesem Zusammenhang mehrere Punkte:
1. § 633 BGB spricht ja von einem "Werk frei von Sachmängeln", § 12 VOB spricht ja nur von "wesentlichen Mängeln", die eine Abnahme verhindern. Die VOB/B wurden uns bei Vertragsschluss komplett ausgehändigt und darauf wurde bisher auch immer verwiesen bei Zusatzaufträgen mit dem Auftragnehmer.
2. Werden viele kleine Mängel, die das Haus in seiner Bewohnbarkeit nicht stören, in der Masse irgendwann auch zu einem wesentlichen Mängel nach VOB?
3. Kann eine Abnahme überhaupt stattfinden, wenn im Vorfeld von unserer Seite schon Mängel an den Auftragnehmer mitgeteilt werden und diese bisher (seit 1 Monat) noch nicht ausgebessert wurden?
4. Kann die 5 %-Erfüllungsbürgschaft nach § 632a Absatz III BGB auch noch nachträglich gefordert werden, bisher haben wir eine solche noch nicht erhalten bzw. gefordert? Also können wir sagen, wir behalten diese 5% solange ein, bis alle Mängel beseitigt sind (auch wenn die Schlussrate nur 3% sind, aber egal)?
5. Grundsätzlich wollen wir keine das Ganze friedlich lösen, wir wollen einfach ein fertiges Haus ohne Mängel bei Abnahme haben. Aber ein bisschen "Futter" beim Telefonat mit dem Auftragnehmer nach Dreikönig wäre schon nett. Auch der Ganz zu einem Baurechtsanwalt in der Nähe wäre eine Option, nur ist soetwas immer mit Kosten verbunden, wenn das "Futter" hier aber nicht beim Gespräch reicht, dann muss eben nachgelegt werden.
Abnahme trotz Mängel möglich/wie verhindern?